Turning Complex Scanning Processes into Clear, Actionable Insights.

We simplify 3D Laser Scanning, Scan to BIM, and Construction Verification so you can make smarter, faster decisions.

Profile 1 Profile 2 Profile 3
150+
Projects Completed
Construction scanning equipment

Precision You Can Rely On

At BGCSS, we specialize in simplifying the technical to deliver precision you can trust. With a small, dedicated team, we treat every project with personal care and meticulous attention to detail

26+
Years Experience

Scan to BIM

Using the latest in static and mobile scanning technologies we produce accurate 3D models delivered in your preferred platform. Revit, Sketchup, AutoCAD, Civil3D, IFC.

As-Built Surveys

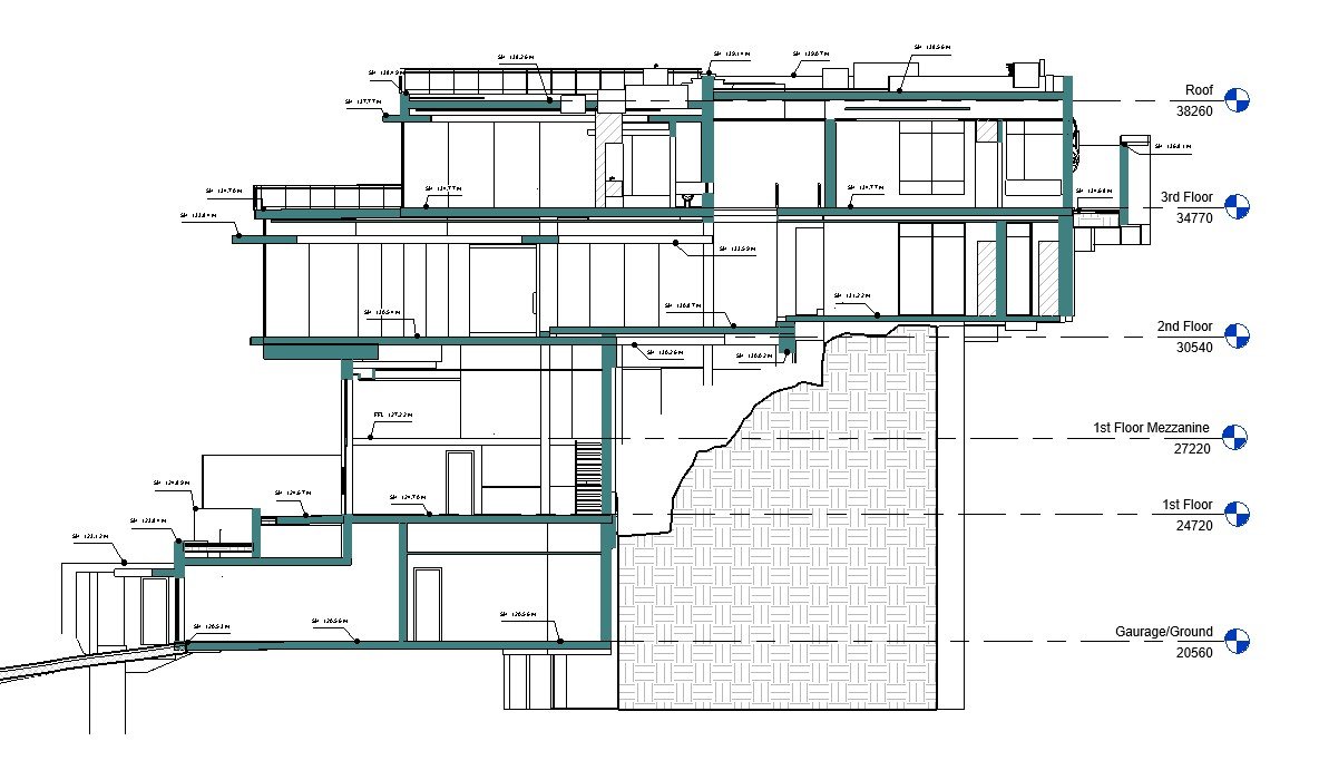
Are you an Interrior Designer, Architect or Engineer? Needing Floor Plans, Sections, Elevations, Site Topography Surveys, White box surveys, Stockpile and Volume surveys, we will measure it and deliver easy to interpret drawings and models.

Setting Out

Our expert setting out services ensure perfect alignment and positioning using high precision robotic total stations, and maintain quality checks with 3D laser scanning, ensuring your project stays on time and on budget.

Construction Verification

TR34 Floor Flatness Surveys, Lift Shaft Verticallity Checks, Pipeline bend analysis, dimensinal analysis and reporting, all delivered in very visual and easy to inderstand product.

Let's talk about your project.

Get in touch to discuss how we can help you with 3D scanning, BIM, or verification services.

Call
+33 7 44 99 90 41
Email
info@bgcss.com
Chat
+33 7 44 99 90 41
User
Email
Message